Boiler system: 6t/h and above
(1).jpg)
Steam and feed flow diagram
(1).jpg)
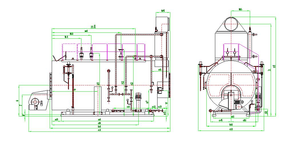
WNS2-6t/h type vapor condensing boiler
(1).jpg)
Length (mm) |
Foundation |
Base |
Transportation clearance |
Max overall dimension |
Water inlet |
Burner center |
Equipment center |
Dewatering outlet |
Air outlet |
Control cabinet |
||||||||
Evaporation capacity |
s |
a1 |
a2 |
a3 |
b1 |
b2 |
b3 |
c1 |
c2 |
c3 |
D1 |
d2 |
d3 |
f |
g |
w |
q |
p |
1t/h |
100 |
2390 |
1400 |
355 |
3130 |
1970 |
2475 |
3700 |
2410 |
3300 |
3650 |
970 |
335 |
895 |
1200 |
— |
— |
1150 |
1.5t/h |
100 |
2750 |
1500 |
425 |
3430 |
2090 |
2575 |
4250 |
3350 |
3450 |
2310 |
965 |
335 |
900 |
1250 |
— |
— |
1420 |
2t/h |
100 |
2680 |
1600 |
525 |
3650 |
2200 |
2514 |
4680 |
2826 |
3745 |
2290 |
1065 |
375 |
980 |
1400 |
— |
— |
1500 |
3t/h |
100 |
3450 |
1700 |
325 |
4550 |
2343 |
2502 |
5200 |
2725 |
4050 |
2905 |
1200 |
375 |
1030 |
1450 |
1220 |
1220 |
1500 |
4t/h |
100 |
3770 |
1800 |
485 |
5020 |
2350 |
2804 |
5720 |
3120 |
4675 |
3360 |
1300 |
385 |
1130 |
1550 |
1026 |
1226 |
1660 |
6t/h |
100 |
4200 |
2000 |
750 |
5660 |
2655 |
3004 |
6350 |
|
|
|
|
|
|
|
|
|
|
Length (mm) |
Manual sewage draining exit |
Continuous drainage outlet |
Relief valve connector |
Main steam interface |
Assistant steam interface |
Chimney breast |
|||||||||||
Evaporation capacity |
e1 |
e2 |
e3 |
e4 |
e5 |
e6 |
k1 |
k2 |
k3 |
k4 |
k5 |
k6 |
m1 |
m2 |
n1 |
n2 |
h |
1t/h |
370 |
230 |
850 |
308 |
— |
— |
1575 |
— |
2262 |
355 |
2805 |
450 |
1980 |
2382 |
2350 |
2312 |
3020 |
1.5t/h |
370 |
235 |
900 |
308 |
— |
— |
1150 |
— |
2362 |
360 |
2985 |
450 |
2250 |
2482 |
2900 |
2412 |
3225 |
2t/h |
360 |
260 |
1000 |
358 |
— |
— |
1050 |
— |
2632 |
405 |
3257 |
600 |
2150 |
2792 |
2900 |
2662 |
2495 |
3t/h |
400 |
260 |
1000 |
358 |
— |
— |
1250 |
— |
2737 |
405 |
3513 |
700 |
2550 |
2912 |
3050 |
2762 |
3775 |
4t/h |
400 |
260 |
1150 |
370 |
700 |
1344 |
1160 |
1560 |
2924 |
435 |
4045 |
925 |
2880 |
3154 |
4080 |
3004 |
4325 |
6t/h |
370 |
270 |
1300 |
352 |
980 |
1200 |
1270 |
1790 |
3141 |
635 |
4465 |
975 |
3310 |
3406 |
3860 |
3206 |
4770 |
WNS8-20t/h type vapor condensing boiler
Length (mm) |
Foundation |
Base |
Transportation clearance |
Max overall dimension |
Water inlet |
Burner center |
Equipment center |
Dewatering outlet |
Air outlet |
Control cabinet |
||||||||
Evaporation capacity |
s |
a1 |
a2 |
a3 |
b1 |
b2 |
b3 |
c1 |
c2 |
c3 |
d1 |
d2 |
d3 |
f |
g |
w |
q |
p |
8t/h |
100 |
5150 |
1990 |
525 |
6690 |
2750 |
3191 |
7820 |
3415 |
5550 |
4730 |
1500 |
396 |
1205 |
1735 |
1400 |
1180 |
1870 |
10t/h |
100 |
5690 |
2050 |
585 |
7290 |
2850 |
3293 |
8420 |
3712 |
5935 |
5000 |
1600 |
400 |
1260 |
1785 |
1045 |
1075 |
1850 |
12t/h |
400 |
5000 |
2500 |
850 |
7460 |
3130 |
3740 |
8590 |
3815 |
6470 |
4770 |
1780 |
742 |
1480 |
2080 |
1440 |
1470 |
1865 |
15t/h |
500 |
6100 |
2720 |
565 |
7530 |
3740 |
4010 |
9820 |
3735 |
6845 |
5135 |
1885 |
852 |
1660 |
2250 |
1500 |
1530 |
1910 |
20t/h |
400 |
6800 |
2800 |
450 |
8500 |
3750 |
3960 |
11090 |
5100 |
7020 |
|
|
|
|
|
|
|
|
Length (mm) |
Manual sewage draining exit |
Continuous drainage outlet |
Relief valve connector |
Main steam interface |
Assistant steam interface |
Chimney breast |
||||||||||||
Evaporation capacity |
e1 |
e2 |
e3 |
e4 |
e5 |
e6 |
e7 |
k1 |
k2 |
k3 |
k4 |
k5 |
k6 |
M1 |
m2 |
n1 |
n2 |
h |
8t/h |
3960 |
380 |
300 |
1150 |
335 |
1000 |
1485 |
1650 |
2200 |
3326 |
735 |
4795 |
1050 |
3850 |
3391 |
4650 |
3391 |
5152 |
10t/h |
4500 |
380 |
300 |
1200 |
355 |
1150 |
1485 |
2050 |
2600 |
3428 |
720 |
5157 |
1180 |
4250 |
3773 |
5050 |
3493 |
5485 |
12t/h |
5400 |
400 |
260 |
1500 |
332 |
1090 |
1763 |
1690 |
2290 |
3888 |
820 |
5590 |
1180 |
4200 |
4338 |
4110 |
3938 |
5970 |
15t/h |
2300 |
410 |
270 |
1650 |
390 |
1600 |
1600 |
1600 |
2250 |
4168 |
870 |
5768 |
1280 |
4000 |
4608 |
5000 |
4208 |
6292 |
20t/h |
6000 |
400 |
100 |
1650 |
324 |
1400 |
1600 |
2850 |
3550 |
4520 |
1070 |
6272 |
1230 |
4400 |
4960 |
5250 |
4560 |
6750 |
Structural features
※ Compact structure, attractive appearance.
※ Steel tube economizer is easy to disassembly, and can save floor area.
※ Reasonable design of heating surface can effectively control resistance of smoke.
※ Appropriate control of exhaust gas temperature can guarantee boiler efficiency.
※ Adopts unique detachable smoke box, thus it is easy for maintenance.
※ Special spring type explosion door and guarantee safety of boiler.
※ Adopts control system of programmable logic controller (PLC) and touch screen.
※ All-around online help, multilevel Chinese pop-up menu and breakdown maintenance manual.
※ All-around safety interlocking protection function can ensure the safe and efficient operation of boiler.
※ Sufficient PLC reserved port and modular expanding module can realize group control, remote control and building control.
Pre: Large-scale tower
Next: Condensing horizontal hot water boiler